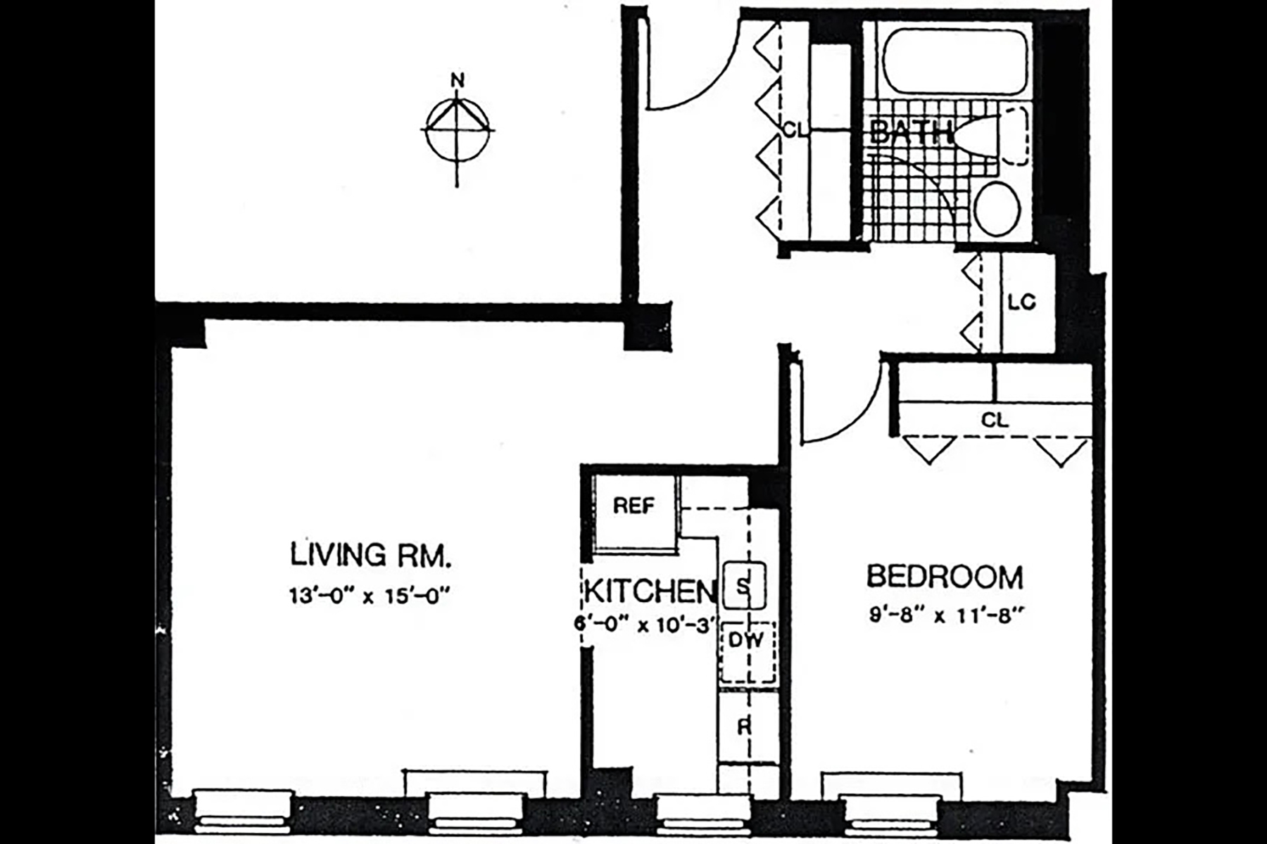
Loft-Style Pre-War Condo Across from Central Park Apartment 5L at 1255 Fifth Avenue is a rare pre-war condominium offering dramatic 12-foot beam ceilings that create a true loft-like atmosphere. This spacious one-bedroom, one-bathroom home is flooded with natural light through south-facing windows, enhancing its open and airy feel. The new renovated windowed kitchen features full-sized stainless-steel appliances, including a dishwasher, and the bathroom has also just been renovated. A generous entry foyer, ample closet space, and classic pre-war details add charm and functionality. Building amenities include a 24-hour doorman, resident manager, fitness center, laundry on every floor, roof deck, storage and bike rooms, and pet-friendly policies. Located directly across from Central Park and near Museum Mile, with easy access to the 2/3/6/ trains and multiple bus lines. - Application fee $750 - Credit report fee: $100 per applicant - Move in fee: $1,000 - Move in deposit refundable fee :$500 - Move out fee: $1,000 - Move out deposit: $500