• About
  • Sales
  • Rentals
  • Offices
  • Retail Space
  • Team
  • Services
  • Resources
  • Contact
  • Property Management
Login | Register
  • 410A Sackett Street
  • $ 2,750,000
410A Sackett Street Gowanus Brooklyn NY 11231
410A Sackett Street Gowanus Brooklyn NY 11231
410A Sackett Street Gowanus Brooklyn NY 11231
410A Sackett Street Gowanus Brooklyn NY 11231
410A Sackett Street Gowanus Brooklyn NY 11231
410A Sackett Street Gowanus Brooklyn NY 11231
410A Sackett Street Gowanus Brooklyn NY 11231
410A Sackett Street Gowanus Brooklyn NY 11231
410A Sackett Street Gowanus Brooklyn NY 11231
410A Sackett Street Gowanus Brooklyn NY 11231
View All Photos
View Floor Plan
Schedule a Viewing

410A Sackett Street

Gowanus   |   Smith Street & Hoyt Street
Listing ID: 103518TH

  • $ 2,750,000
  • Bedrooms
  • Bathrooms
  • TownhouseBuilding Type
  • 2,920 Approx. SF

  • Details
    • Multi-FamilyOwnership
    • $ 6,732Anual RE Taxes
    • 16'x45'Building Size
    • 16'x90'Lot Size
    • 1899Year Built
    • ActiveStatus

410A Sackett Street Gowanus Brooklyn NY 11231
  • Description
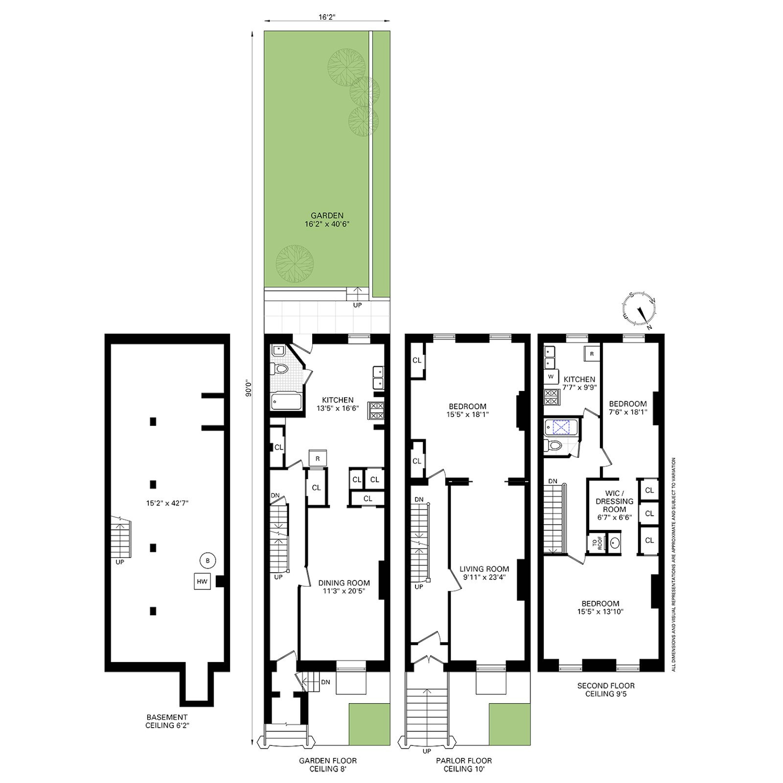
  • RUN, DON'T WALK to see this rare gem on one of the loveliest brownstone blocks in Carroll Gardens!  Built 16.17 feet x 45 feet on a 16.17 foot x 90 foot lot, the property will be delivered vacant and is currently configured as 2 units, an owner's duplex and a separate apartment on the uppermost floor. However, the property can easily be returned to a single-family residence. The basement can be finished to create an entire additional floor of living space, and the roof can be finished to become a roof deck. The property also has 700 sq ft of unused air rights.

    The townhouse has a gas boiler and water heater that have both been updated and well-maintained.  While it will require some TLC, the home has boundless potential and immense turn-of-the-century charm, including multiple original fireplaces, a skylight, ceiling medallions, intricate moldings, and more!  The property also boasts an expansive rear yard perfect for outdoor entertaining!

    Front Yard: 158 square feet
    Rear Garden: 656 square feet
    Total Exterior: 814 square feet

    Basement: 730 square feet
    Garden Floor: 730 square feet
    Parlor Floor: 730 square feet
    Second Floor: 730 square feet
    Total Interior: 2,920 square feet

    Zoning District: R6B
    Building Class: B3
    FAR: 2
    FAR as built: 1.52
    Unused FAR: 698 square feet

    RUN, DON'T WALK to see this rare gem on one of the loveliest brownstone blocks in Carroll Gardens!  Built 16.17 feet x 45 feet on a 16.17 foot x 90 foot lot, the property will be delivered vacant and is currently configured as 2 units, an owner's duplex and a separate apartment on the uppermost floor. However, the property can easily be returned to a single-family residence. The basement can be finished to create an entire additional floor of living space, and the roof can be finished to become a roof deck. The property also has 700 sq ft of unused air rights.

    The townhouse has a gas boiler and water heater that have both been updated and well-maintained.  While it will require some TLC, the home has boundless potential and immense turn-of-the-century charm, including multiple original fireplaces, a skylight, ceiling medallions, intricate moldings, and more!  The property also boasts an expansive rear yard perfect for outdoor entertaining!

    Front Yard: 158 square feet
    Rear Garden: 656 square feet
    Total Exterior: 814 square feet

    Basement: 730 square feet
    Garden Floor: 730 square feet
    Parlor Floor: 730 square feet
    Second Floor: 730 square feet
    Total Interior: 2,920 square feet

    Zoning District: R6B
    Building Class: B3
    FAR: 2
    FAR as built: 1.52
    Unused FAR: 698 square feet

    Listing Courtesy of Brown Harris Stevens Residential Sales LLC
  • Contact
  • William Abramson

    License Licensed As: William D. Abramson

    Director of Brokerage, Licensed Associate Real Estate Broker

    W: 646-637-9062
    M: 917-295-7891
    • Email Me
    • Download Contact

  • View more details +

  • Features
    • A/C
    • Roof Deck

  • Close details -
  • Contact
  • William Abramson

    License Licensed As: William D. Abramson

    Director of Brokerage, Licensed Associate Real Estate Broker

    W: 646-637-9062
    M: 917-295-7891
    • Email Me
    • Download Contact

  • Mortgage Calculator
  • $
    %
    $
    %

    Loan Amount


This information is not verified for authenticity or accuracy and is not guaranteed and may not reflect all real estate activity in the market. ©2025 REBNY Listing Service, Inc. All rights reserved. Additional building data provided by On-Line Residential [OLR].
All information furnished regarding property for sale, rental or financing is from sources deemed reliable, but no warranty or representation is made as to the accuracy thereof and same is submitted subject to errors, omissions, change of price, rental or other conditions, prior sale, lease or financing or withdrawal without notice. All dimensions are approximate. For exact dimensions, you must hire your own architect or engineer.